Activity
Mon
Wed
Fri
Sun
Jan
Feb
Mar
Apr
May
Jun
Jul
Aug
Sep
Oct
Nov
What is this?
Less
More

Memberships

ArchiBIM Academy

967 members • Free

7 contributions to ArchiBIM Academy
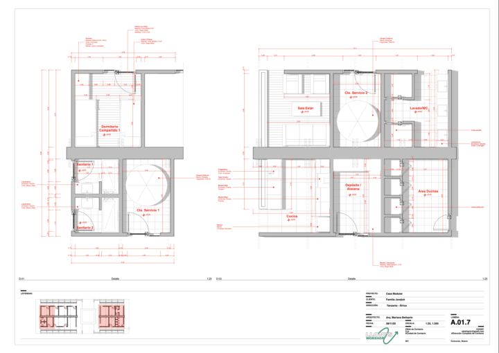
Avances-Learning-Week (Diseño y Documentación de Viviendas Modulares)
Ultima lección Estos son mis resultados. Los detalles bastante bien, pero si se debe trabajar un poco en la parte de enviar al frente y al fondo los elementos para mejorar la visualización. La parte de representación de la perspectiva me gusto mucho, pues el hecho de que se actualice con el modelo esta genial. Esta herramienta del generar un 3d desde el 3d, la conocía pero no la manejaba muy bien.
Avances-Learning-Week (Diseño y Documentación de Viviendas Modulares)
2 likes • 3d
Que gran trabajo, felicitaciones
Diseño de Interiores Profesional con Archicad 28 + ModelPort 🛋️✨
Hoy les comparto un adelanto del proyecto que hemos estado desarrollando en el nuevo curso de Diseño de Interiores con Archicad 28 y ModelPort. En este curso aprenderás a: 🔹 Modelar espacios interiores con precisión y estética. 🔹 Importar mobiliario realista con ModelPort sin perder rendimiento. 🔹 Configurar materiales, luces y escenas profesionales. 🔹 Preparar planos, cortes y vistas 3D listos para entrega. 🔹 Crear una experiencia visual de alto nivel para tus clientes. Si te gustaría dominar este flujo de trabajo y llevar tus proyectos al siguiente nivel, puedes unirte desde la plataforma de ArchiBIM Academy y acceder de inmediato a las clases completas. Déjame un comentario si quieres más información o el link directo.Nos vemos en clase 🚀 https://www.skool.com/llonis-workshop-8945/classroom/074aa42b?md=c15698428af24f79835075c20dd2b13f
1 like • 3d
Me falta nivel Arq. a seguir participando en la comunidad jaja
1 like • 3d
perfecto Arq. así sera
ASOLEAMIENTO EN POTHOSOP
Estoy muy emocionada y feliz de poder compartir mis resultados, la verdad que en estas pocas semana e logrado uun desarrollo bastante, simplemente Gracias Arquitecto Fernando!!
ASOLEAMIENTO EN POTHOSOP
1 like • 3d
increible trabajo, me gustaria poder manejar un poco de photoshop
CERCHAS CURVAS con PERFILES COMPLEJOS — ARCHICAD PRO 🤯
Hoy ayudé a un estudiante a resolver un reto que muchos evitamos al comienzo: cómo cubrir y modelar fachadas curvas utilizando cerchas con perfiles complejos en Archicad. Lo interesante de este ejercicio es que no se trata de modelar por modelar, sino de entender la lógica estructural + la herramienta correcta para hacerlo rápido, limpio y profesional. La clave estuvo en elegir la herramienta ideal y configurar correctamente el perfil, sin depender de plugins externos ni procesos lentos. 🔑 Aprendizajes del ejercicio: - Selección de la herramienta correcta para curvas con estructura - Configuración rápida de perfiles complejos - Repetición inteligente sin perder control del diseño - Cómo mantener precisión en la documentación (cortes y fachadas) - 📌 Si están trabajando con formas libres, fachadas orgánicas o estructuras curvas, este tipo de ejercicios les va a ahorrar horas de prueba y error. 💬 Pregunta para la comunidad¿Les gustaría que prepare una clase paso a paso sobre perfiles complejos y cerchas curvas dentro de ArchiBIM Academy?
1 like • 3d
Excelente video Arq.
3D BIM MODEL | CASA PATRIMONIAL DR.WILFRIDO LOOR
Continuación del proyecto Aquí se muestra la evolución del nivel de desarrollo: - LOD 200 (geometría genérica) - LOD 300 (definición) - LOD 500 (modelo más completo)
3D BIM MODEL | CASA PATRIMONIAL DR.WILFRIDO LOOR
1 like • 7d
Lindo trabajo
1-7 of 7
Cristhian Britez
2
10points to level up
@cristhian-britez-1500
Estudiante de arquitectura, apasionado por el arte

Active 5h ago
Joined Nov 14, 2025
Paraguay